Klicken Sie bitte auf das Bild, um es zu vergrößern!
Objektbeschreibung
Inmitten einer ruhigen Wohnanlage im beschaulichen Garding erwartet Sie dieses liebevoll modernisierte Reihenmittelhaus mit einer Größe von rund ca. 92 m², verteilt auf zwei Etagen – ideal für Paare, kleine Familien oder als stilvolles Refugium an der Nordseeküste.
Diese charmante Hausscheibe besticht durch ihre wohnliche Atmosphäre, ihrer hochwertigen Ausstattung und der durchdachten Raumaufteilung – einziehen und wohlfühlen!
Energieausweis – Verbrauchsausweis – Endenergieverbrauch 91,5 kWh/(m²°a).
Für mehr Informationen senden wir Ihnen gerne das vollständige Exposé zur Immobilie zu.
Lage
Garding liegt zentral auf der Halbinsel Eiderstedt in Schleswig-Holstein und blickt auf eine lange Geschichte als Markt- und ehemalige Hafenstadt zurück. Heute ist der Ort nicht nur kultureller Mittelpunkt der Region, sondern auch Verwaltungssitz sämtlicher Gemeinden des Amtes Eiderstedt.
Mit der zentralen Lage ist die Kleinstadt Garding auch ein guter Ausgangspunkt und ein schöner Ort zum Wohnen und Leben.
Der Stadtkern Gardings ist von sorgfältig restaurierten historischen Gebäuden geprägt. Beim Gang durch die schmalen Straßen zeigt sich, dass sich die Stadt im Wandel befindet. Zahlreiche Bau- und Sanierungsmaßnahmen sind im Gange. Die frühere Hafenstadt entwickelt sich schrittweise weiter. Dabei wird der ursprüngliche Charakter mit viel Augenmerk auf Details wieder sichtbar gemacht.Garding verfügt über verschiedene Einkaufsmöglichkeiten, eine Tankstelle, Kindergärten, eine Grundschule, Ärzte und eine Apotheke und deckt somit alle Bereiche des täglichen Lebens ab. Mit dem Auto oder der Bahn sind es nur wenige Autominuten bis nach St. Peter Ording an den Strand oder für weitere Einkaufsmöglichkeiten nach Tönning. In die Theodor-Storm-Stadt Husum und zum Autobahnanschluss in Heide benötigen Sie jeweils nur ca. 25-30 Autominuten.
Ausstattung
– ruhige Wohngegend
– Außenjalousien
– moderne Ausstattung
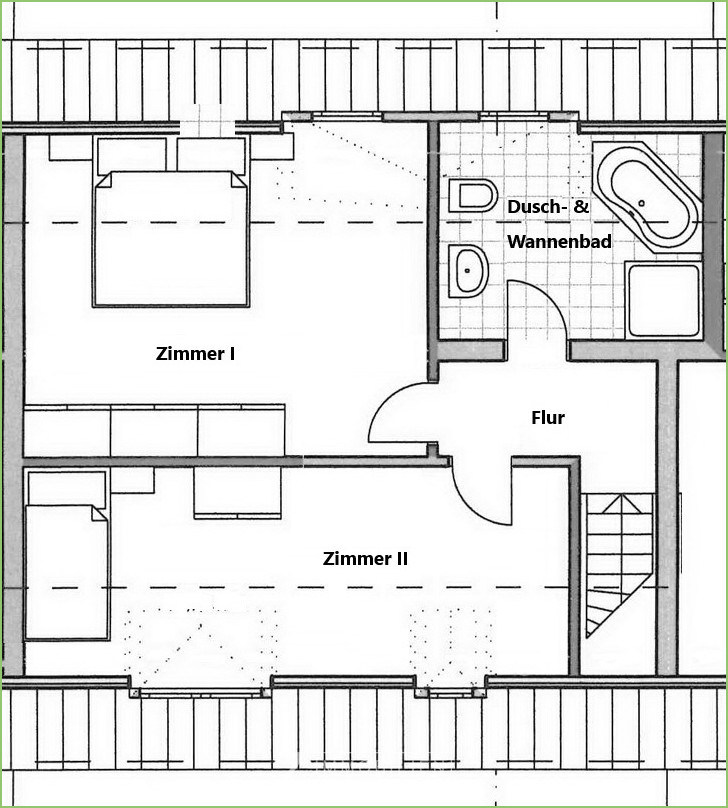
– Dusch- und Wannenbad
– Carport mit Abstellraum




