Klicken Sie bitte auf das Bild, um es zu vergrößern!
Objektbeschreibung
Dieses gepflegte Einfamilienhaus aus dem Jahr 2017 liegt in einer ruhiger Sackgassenlage in der Hafenstadt Tönning. Auf einer Größe von ca. 164 m² und über zwei Etagen überzeugt es mit heller Raumgestaltung, moderner Ausstattung und funktionalem Grundriss.
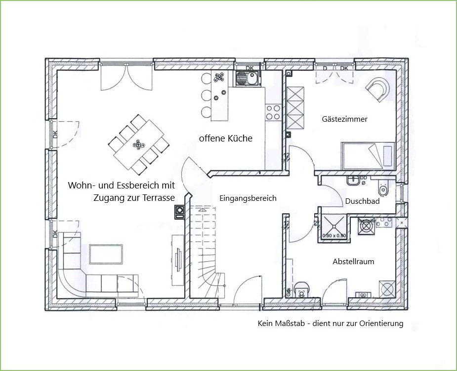
Im Erdgeschoss erwartet Sie ein offener Wohn- und Essbereich mit integrierter, gut ausgestatteter Küche und Zugang zur sonnigen Süd-West-Terrasse. Ergänzt wird die Etage durch ein Gästezimmer, ein Duschbad und ein Hauswirtschaftsraum.
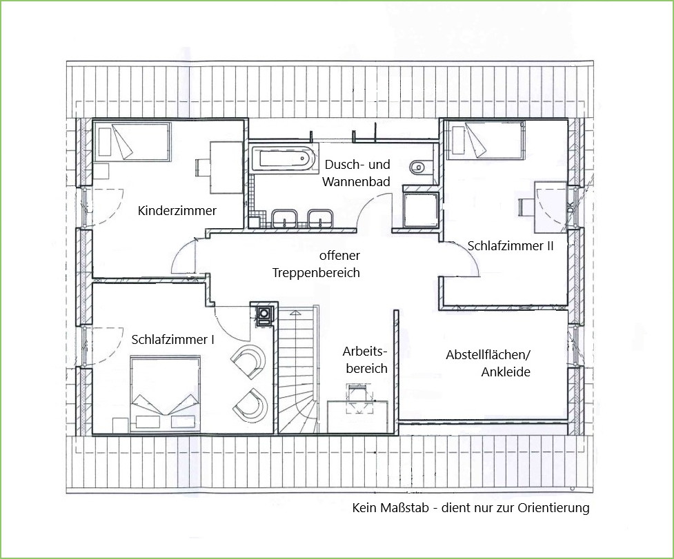
Das Dachgeschoss erreichen Sie über eine Holztreppe. Es bietet drei flexibel nutzbare Zimmer, ein modernes Bad mit Dusche und Wanne, einen offenen Arbeitsbereich sowie einen zusätzlichen Abstellraum bzw. eine Ankleide.
Das ca. 860 m² große Grundstück lädt mit Garten, Süd-West-Terrasse und Feuerstelle zum Entspannen ein. Ein Gartenhaus sowie ein großer Carport (6m x8m) mit zwei PKW-Stellplätzen runden das Angebot ab.
Gerne stellen wir Ihnen das vollständige Exposé zur Verfügung. Wir freuen uns auf Ihre Anfrage.
Energieausweis – Bedarfsausweis – Endenergiebedarf 38,9kWh/(m²°a).
Lage
Das Wohnhaus selbst befindet sich in ruhiger Sackgassenlage. Die charmante Hafenstadt Tönning liegt unmittelbar an der Mündung der Eider und zählt zu den beliebten Bade- und Luftkurorten der Region. Mit einer gut ausgebauten Infrastruktur bietet der Ort zahlreiche Einkaufsmöglichkeiten für den täglichen Bedarf, medizinische Versorgung durch Ärzte und eine Apotheke, Bildungseinrichtungen wie Schulen und einen Kindergarten sowie einen Hafen mit dem historischen Packhaus und einen eigenen Bahnhof. Vielfältige Sportvereine tragen zusätzlich zu einem hohen Freizeitwert bei. Dank der günstigen Lage in der Nähe der Nordsee, der Städte Husum und Heide sowie der weitläufigen Strände von St. Peter-Ording bietet Tönning eine hervorragende Verkehrsanbindung und einen besonderen Wohnwert.








































