Klicken Sie bitte auf das Bild, um es zu vergrößern!
Objektbeschreibung
Eine seltene Gelegenheit unter Reet mit offizieller Genehmigung zur Ferienvermietung.
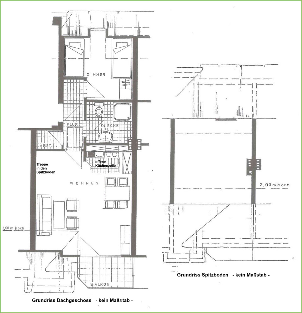
Diese charmante Maisonettewohnung verfügt eine Gesamtfläche von ca. 70m².
Neben dem gemütlichen Wohnbereich mit sonnigem Balkon ist das ausgebaute Dachgeschoss ein echtes Highlight. Der großzügige Raum mit separatem Schrank / Abstellraum bietet Platz zur kreativen Entfaltung. Ein modernes Duschbad und ein weiteres Zimmer runden das Raumangebot ab.
Der unverbaubare Blick ins Grüne, die ruhige Waldrandlage und zugleich die Nähe zum Strand, Zentrum und zu den Einkaufsmöglichkeiten machen sie zu einem echten Highlight.
Ein liebevoll gepflegtes Zuhause, ideal als Zweitwohnsitz oder als Ferienwohnung.
Die Wohnung wurde ausschließlich von den Eigentümern genutzt und befindet sich somit in einem sehr gepflegten Zustand.
Gerne übersenden wir Ihnen das vollständige Exposé mit weiteren Informationen zur Wohnung.
Für eine Terminvereinbarung stehen wir Ihnen persönlich zur Verfügung.
Wir freuen uns über Ihre Rückmeldung.
Energieausweis – Bedarfsausweis – Endenergiebedarf 86,7 kWh/(m²°a)
Lage
St. Peter-Ording ist so beliebt wie nie! Ein Hotspot für „Jedermann“. An der Nordseeküste gelegen und mit seinen gut 12km langen Sandstrand, Dünen, Salzwiesen und Kiefernwäldern ein wunderbarer Ort um vor Anker zugehen.
Die Wohnanlage liegt eingebettet in eine ruhige Wohngegend zwischen Natur und Infrastruktur im Ortsteil Ording. In nur wenigen Gehminuten ist man beim beliebten Strand, den Pfahlbauten, der eindrucksvollen Dünentherme und der belebten Flaniermeile mit Einkaufs- und Gastronomie-Angeboten.
Die vier unterschiedlichen Ortsteile von St. Peter sind das lebhafte Badzentrum, das typische Dorf, der ruhige Teil Böhl und das berühmte Ording mit seinem besonderen Strandabschnitt. Jeder Ortsteil hat seinen ganz eigenen Charakter und sprechen damit die unterschiedlichsten Gruppen an.
Ob im Sommer das kühle Nass genießen oder bei kälteren Tagen ein Heißgetränk in einer der Pfahlbauten genießen, hier ist alles möglich.
St. Peter Ording hat für jeden etwas zu bieten. Das facettenreiche Angebot von Veranstaltungen und Ausflugszielen ermöglicht eine ausgefallene Tagesgestaltung. Ob mit der Bahn, dem Auto oder dem Fahrrad ist die Halbinsel Eiderstedt von St. Peter Ording aus gut zu erkunden.





















